安詩曼電器
手機:133-6050-3273
微信:133-6050-3273
地址:廣東深圳坪山區青松西路8號鴻合科技園

消失模烘干設備,消失模烘干方法技術動態從事消失模鑄造行業的人都知道,在消失模鑄造加工過程中的涂料烘干會直接影響工廠的效率和成品的質量。為了加快用于大型模具的水溶性涂料的干燥速度,生產上的簡便消失模烘干方法是
了解詳情
消失模澆注反噴分析消失模涂層烘干機:消失模鑄造是一種新型鑄造工藝,跟傳統鑄造工藝相比,產品精密度高,后期加工少,更加環保清潔,深受鑄造業的喜愛,是現在國內的精密鑄造業用的主要澆注工藝。反噴是在消失模澆注的時
了解詳情
消失模烘干機,消失模烘干注意要點:消失模鑄造是現在精密鑄造的主要工藝,由于使用的是石蠟、泡沫以及水性硅溶膠等熔點很低的材料來制作模具,所以在鑄造過后就會消失,因此而得名。既然熔點低,那么就需要在這些模具的表面噴涂耐高溫材料,這些耐高溫材料在烘干后再能進行鑄造,否則的話是不行了。這層涂料的作用就是避免...
了解詳情
消失模模具烘干房除濕機,干得快、不開裂、成本低、更環保!【技術動態】眾所周知,消失模鑄造,又稱實型鑄造。現如今,隨著消失模的應用領域不斷擴大,消失模鑄造技術的優勢體現的越來越明顯。由于經此技術鑄造出來的鑄件精度高、加工余量小、內部質量好、成本低;為此,近年來越來越多的中小鑄造廠紛紛引進了消失模鑄造技...
了解詳情
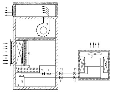
調溫除濕機用蒸發器來給空氣降溫除濕,并回收系統的冷凝熱,彌補空氣中因為冷卻除濕時散失的熱量,是一種高效節能的除濕方式,已經廣泛應用于國防工程、人防工程、煙草及石化行業、地鐵車站、航天領域凈化工程、實驗室、電訊器材室、
了解詳情
涂裝車間除濕機,汽車涂裝車間除濕方案新聞資訊報道:在汽車車身的制作過程中,涂裝工藝是其中較為重要的工序之一;而涂裝質量的好壞與車間環境內部的溫濕度,潔凈度等因素有著直接的關系,而其中在很大程度上取決于車間環境空氣濕度的變化。要保證涂裝質量、獲得最佳的涂層、取得最大限度的經濟效益,就必須對涂裝車間生產...
了解詳情
產品的外觀質量不僅反映了產品的保護和裝飾性能,也是構成產品價值的重要因素,噴涂過程中如果溫度和濕度控制不好,次品率會增高,生產效率會下降,給企業帶來不小的損失,涂裝車間應如何配置溫濕度設備?噴砂和噴涂是最常用的涂裝方法,這些方法有效地解決了金屬表面的氧化問題。A的方法是使用轉輪除濕機來控制涂層環境中...
了解詳情
涂裝專用除濕機,有機的結合了冷凍除濕與轉輪除濕兩種除濕方式,是設計先進、運行經濟的四季智能型空氣處理設備。隨著我國工業的快速發展,在船舶制造、汽車制造、鋼結構制造等眾多行業對產品的涂裝要求越來越高,涂裝專用除濕機出開始得到應用。在涂裝生產工藝中主要以噴砂噴漆為主,而在這些工藝中有效解決金屬表面氧化問...
了解詳情
涂裝車間加濕器,涂裝廠車間加濕設備新聞資訊:在全國各大汽車制造企業中涂裝車間是必不可少的,涂裝作業是汽車車身制作過程中的一項重要工序,決定了車身整體外觀的品質!而涂裝質量的好壞,除了與被涂物表面處理質量、油漆的配套性以及人員、設備、技術等方面有關之外,還與涂裝車間的環境有著直接的關系。因此,涂裝工藝...
了解詳情
涂裝車間干霧加濕器確保漆面光滑靚麗:涂裝跟噴涂是同一回事,簡單的說就是給物體表面噴涂漆料,起到防腐的作用,當然了也可以讓物體表面更加美觀,在家具、汽車、空調等行業都有很大的作用。要想涂裝表面光滑不起泡,那么空
了解詳情
傳統家私廠噴漆作業一般都在露天進行,但在進行噴漆過程中會把粉塵、雜質等混合在油漆里,且噴漆還會弄臟地上,污染環境;噴漆人員也會吸入許多油漆霧,而當今設備對家私出產的請求越來越高,家私廠為了確保出產出高質量的實木家私商品及在出產過程中保護環境不受污染,必須建造一個現代化、自動化、環保節能的無塵噴漆房來...
了解詳情
對于現代化的涂裝線,一般都能滿足恒溫、恒濕和潔凈的空氣(空氣粉塵含量為了使涂裝生產線內的空氣粉塵量得到有效控制,首先應改善生產線外的環境狀況,將打磨、擦凈工序與噴漆工序分開,避免打磨產生的粉塵進入生產線噴涂室或干燥(固化)爐,消除打磨灰塵
了解詳情
涂裝是鐵質、木質工藝品不可或缺的工序。所謂涂裝,是指在金屬或非金屬表面復蓋保護層或裝飾層。涂裝車間對溫度和濕度有一定的要求。如果季節性濕度過高,油漆會干燥得太慢,會導致油漆效果不佳。為了解決油漆太慢的問題,使用轉輪除濕機是A的選擇。在涂裝生產工藝中主要以噴砂噴漆為主,轉輪除濕機能降低金屬表面露點溫度
了解詳情
涂裝打磨車間需要加濕機控濕:很多行業在對產品進行加工的時候需要打磨,比如噴塑之類的,需要先將噴塑的物件表面處理好,然后才能進行噴塑作業,只有這樣才能保證噴塑件表面的光滑度,保證噴塑質量,不過這里就出現了一個問題,那就是在打磨過程中會出現大量的粉塵,這些粉塵會漂浮在空氣中,對噴塑作用造成影響。粉塵對噴...
了解詳情
涂裝專用除濕機有機的結合了冷凍除濕與轉輪除濕兩種除濕方式,是設計A、運行經濟的四季智能型空氣處理設備。其中冷凍除濕是利用壓縮機制冷,將空氣溫度降到露點以下,排出冷凝水,使空氣濕度降低。而轉輪除濕則是利用轉輪蜂窩狀基質纖維上附有吸濕介質硅膠,具有在低濕時吸濕的能力,當潮濕空氣在通過轉輪時,空氣中的水份...
了解詳情
像所有的除濕機一樣,在浴室使用除濕機可以減少浴室的濕度。當家里的相對濕度大于60%,家里就會產生霉菌,家里的霉菌與各種各樣的問題有關。本文會告訴你浴室霉菌的壞處和防止它的最好方法。為什么浴室有霉菌問題?顯然,每個人都不希望在浴室看到發霉跡象。畢竟,霉菌是很難看的而且清洗需要很長一段時間,它還會給你的...
了解詳情
大部分家庭中的浴室都是常年不見陽光,所以浴室內的濕氣會比較的重,加上在浴室內洗澡以及清洗衣物等,會讓浴室更加的潮濕,浴室的濕氣過重不僅會影響浴室內的空氣質量,也容易有異味產生,嚴重的時候也會影響家庭的整體空氣質量。所以為了改善浴室內的空氣質量,可以在浴
了解詳情
涂料專用除濕機結合了兩種冷凍除濕模式轉輪除濕機是采用先進的設計,智能四季運行的經濟,空氣處理設備。之一是使用的制冷壓縮機制冷除濕,空氣溫度低于露點,冷凝水,空氣濕度較低。可用于循環水解吸壓縮機冷凝熱回收,熱會使使除濕輪后的空氣溫度后,將上升到涂
了解詳情
浴室柜是裝在浴室里面的,一旦到梅雨天衛生間是極端容易受潮的,受潮后就會招致浴室柜發霉。怎樣能讓浴室柜不受潮發霉呢?1:金屬高腿設計拒絕潮氣向上延伸浴室柜假設選用拇指的柜腿就容易受潮,而且會在不知不覺中將潮氣引向柜體,終會招致整個柜子變形
了解詳情
1.自然系除濕:虎尾蘭想要解決濕氣問題,最佳植栽選擇非虎尾蘭莫屬啰!天生愛喝水的葉子,可以自動吸收空氣中的水蒸氣,堪稱植栽界的第一把交椅。2.異味克星:蘆薈、薄荷如廁后難免會有些污穢之氣,這時如果有一盆蘆薈,便能吸收異味,還原空氣中的小清新。當然,如果異味已達緩不濟急的程度,建議搭配薄荷植栽一起使用
了解詳情